Visual Artist / Designer

Detroit, MI

EXHIBIT DESIGN

/

Gallagher & Associates

EXHIBIT DESIGN

/

Gallagher & Associates

EXHIBIT DESIGN

/

Gallagher & Associates

Sazerac House

Sazerac House

Sazerac House

(

2

)

(

2

)

(

2

)

/ About the project

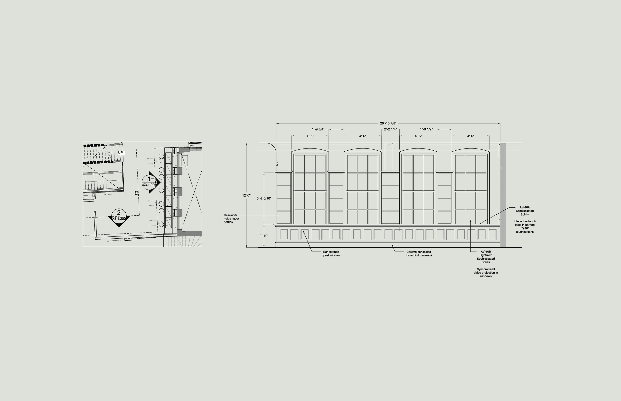
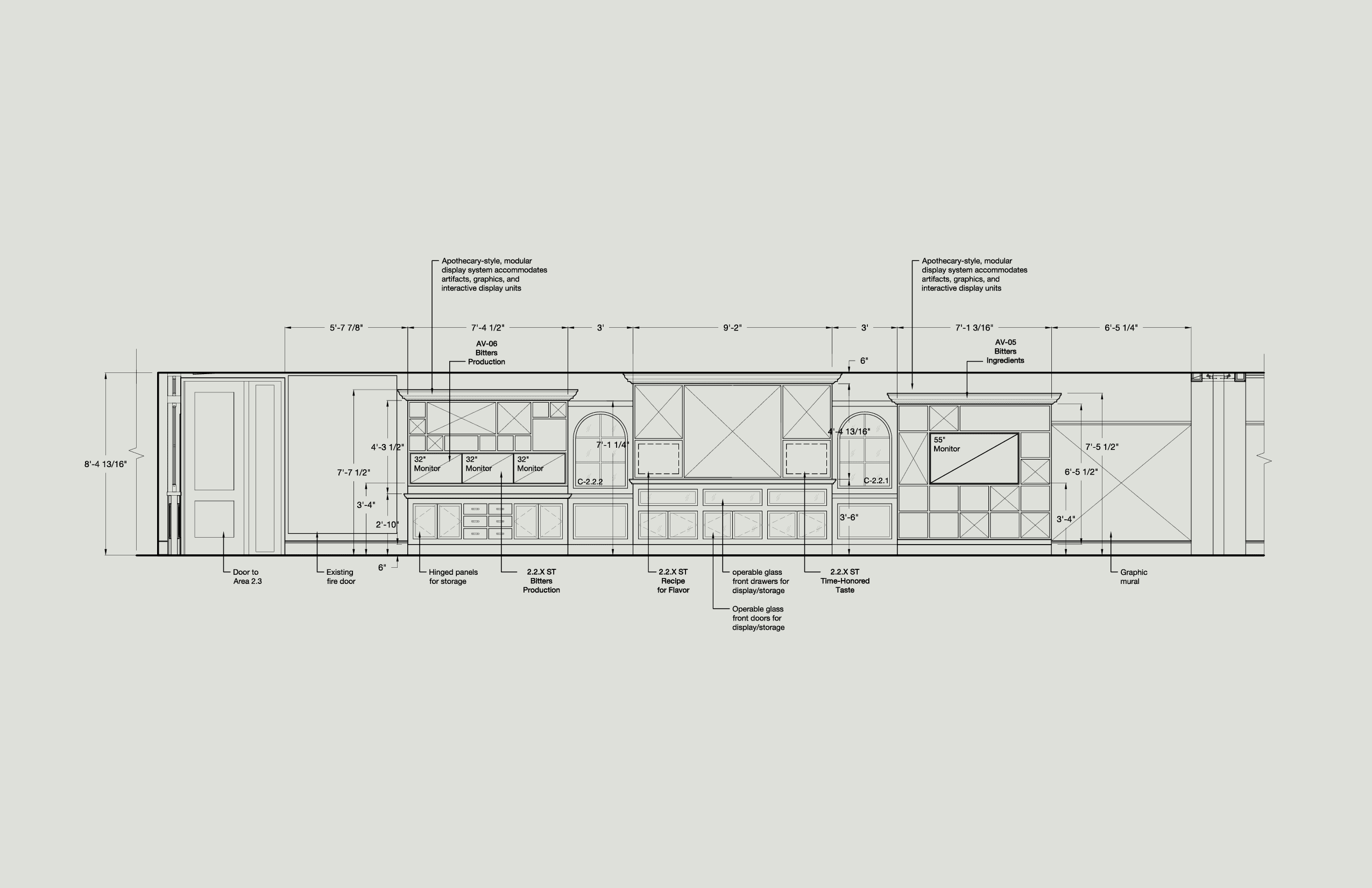
An exhibit detailing the history of the Sazerac brand, its New Orleans origins and influence, offering deeper dives into ingredients, production, distilling and bottling through various interactive and immersive means. Millwork design and material selection speak to late 1800s New Orleans bars, setting the atmosphere to engage with Sazerac's rich history.

An exhibit detailing the history of the Sazerac brand, its New Orleans origins and influence, offering deeper dives into ingredients, production, distilling and bottling through various interactive and immersive means. Millwork design and material selection speak to late 1800s New Orleans bars, setting the atmosphere to engage with Sazerac's rich history.

An exhibit detailing the history of the Sazerac brand, its New Orleans origins and influence, offering deeper dives into ingredients, production, distilling and bottling through various interactive and immersive means. Millwork design and material selection speak to late 1800s New Orleans bars, setting the atmosphere to engage with Sazerac's rich history.

/ Role

Exhibit Designer

/ Phase(s)

SD-CA

/ Responsibilities

Spatial Planning, Exhibit Flow, Media & Interactive Concepting, Case/Artifact Layout, Content Layout, Materials & Finishes

OTHER

PROJECTS

Get in touch

Create a free website with Framer, the website builder loved by startups, designers and agencies.