Visual Artist / Designer

Detroit, MI

Exhibit Design

/

Gallagher & Associates

Exhibit Design

/

Gallagher & Associates

Exhibit Design

/

Gallagher & Associates

WWII Arsenal of Democracy

WWII Arsenal of Democracy

WWII Arsenal of Democracy

(

3

)

(

3

)

(

3

)

/ About the project

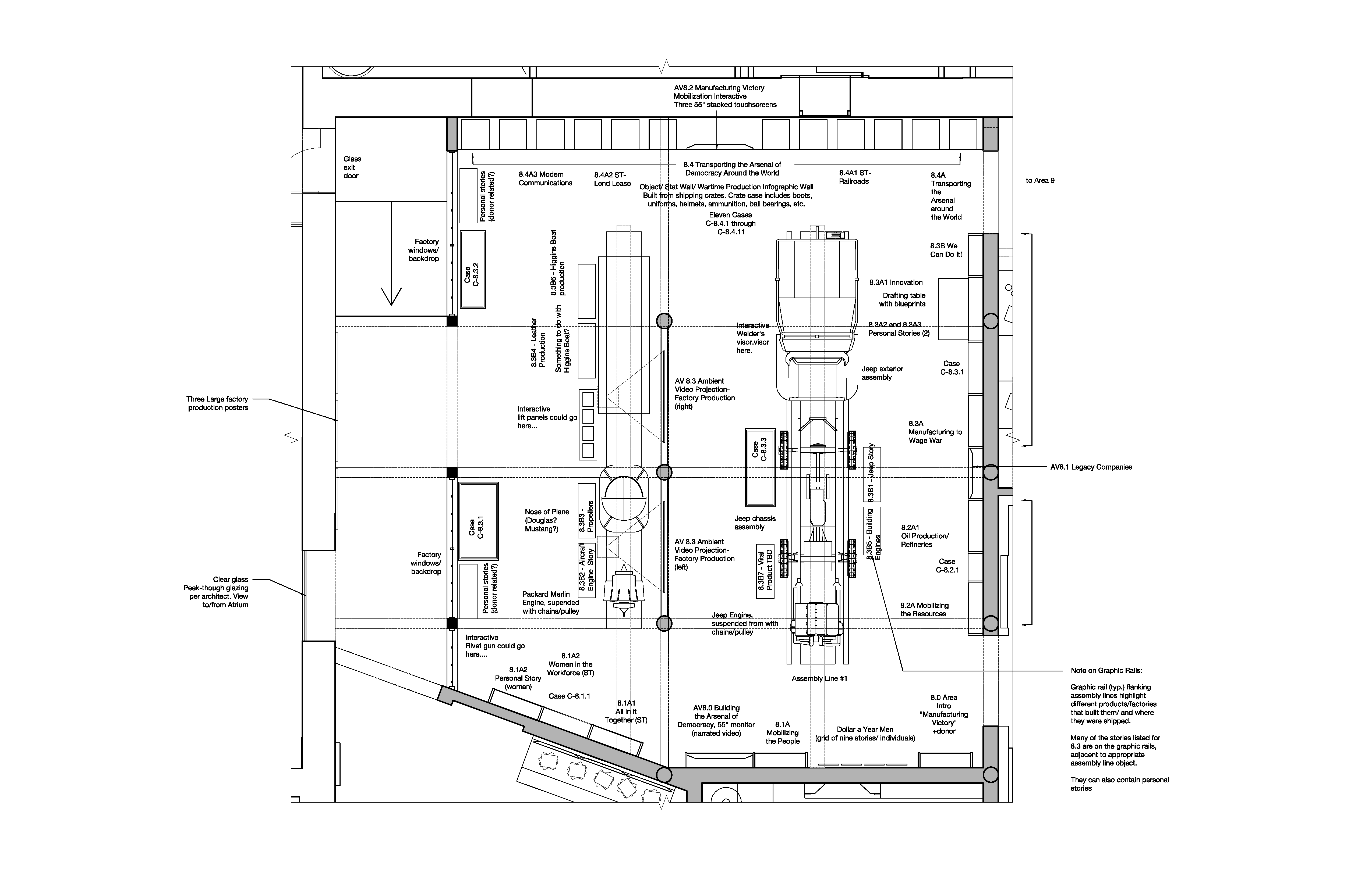
A permanent exhibit in the National WWII Museum, the Arsenal of Democracy focuses the great efforts on the American homefront to support a country at war. Artifact displays paired with a mix of media integration detail the thoughts, feelings, and actuality of the effects of WWII on American citizens and their efforts' impact on the outcome of the war.

A permanent exhibit in the National WWII Museum, the Arsenal of Democracy focuses the great efforts on the American homefront to support a country at war. Artifact displays paired with a mix of media integration detail the thoughts, feelings, and actuality of the effects of WWII on American citizens and their efforts' impact on the outcome of the war.

A permanent exhibit in the National WWII Museum, the Arsenal of Democracy focuses the great efforts on the American homefront to support a country at war. Artifact displays paired with a mix of media integration detail the thoughts, feelings, and actuality of the effects of WWII on American citizens and their efforts' impact on the outcome of the war.

/ Role

Exhibit Designer

/ Phase(s)

SD-CA

/ Responsibilities

Spatial Planning, Exhibit Flow, Media & Interactive Concepting, Artifact Layout, Content Layout, Materials & Finishes

OTHER

PROJECTS

Get in touch

Create a free website with Framer, the website builder loved by startups, designers and agencies.